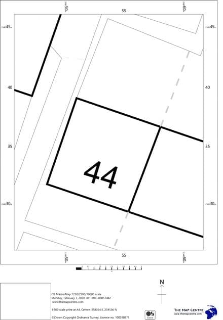
Ordnance Survey MasterMap Plan at 1:500
Land registry and Local Authority Planning Compliant
These Maps are available at paper sizes,
A4 Ground Coverage - 80 x 80m
A3 Ground Coverage - 123 x 161m
A2 Ground Coverage - 185 x 248m
A1 Ground Coverage - 272 x 371m
A0 Ground Coverage - 395 x 545m
This scale is ideal is Planning Applications and Land Registry purposes - Although please check the coverage first as at this scale the map only covers a very small area.
Your local authority or the Land Registry will be able to offer further advice about the map they require from you, however feel free to call us for some friendly help.
These maps use the very latest, up to date Ordnance Survey Mastermap Data.
The map will be to scale and will include a Scale Bar a North Arrow, Ordnance Survey Co-ordinates, Site centre OS Grid reference and the Ordnance Survey License Number.
These are Planning Authority and Land Registry Compliant Plans.
If you need to have height information included on your Siteplan, please select this from the dropdown menu. The contours will appear in 3 separate layers within the PDF, which can be displayed and printed on the map as selected.
Contours layers are at 10m and 5m and 1m intervals
The Contours depict a DTM - A Bare Earth Model (no Vegetation or Building Heights)
Contours are not usually required for a Planning application
If you would like any help or advice prior to ordering please call Jonathan on 01432 266322
If you would like a Map Preview emailed to you, please contact Jonathan on either jonathan@themapcentre.com or 01432 266322.
Maps are posted the same day if ordered before 12 noon.
Email orders are usually dispatched within 2 working hours
If your order is urgent, please call at the time of ordering.
Customer reviews
| Condition | New |
| Weight |

-17730-p.jpg?w=118&h=9999&v=7db4a17b-5b1a-4a86-a63f-5b78fb8a8592)
-6726-p.jpg?w=118&h=9999&v=8E3AE535-0A55-4A95-A778-48DC9911066D)
-6726-p.jpg?w=118&h=9999&v=D57A74EA-413C-4131-B913-79E5122F7931)
-6726-p.jpg?w=118&h=9999&v=5D9371C0-5EF1-4AE2-84E8-70E657306B87)

-6726-p.jpg?w=118&h=9999&v=8C386FB4-5AE2-400A-90A6-ED72B03170A5)
-6726-p.jpg?w=118&h=9999&v=AFD5B57F-9B14-4751-914A-004A43E278D8)
-6726-p.jpg?w=118&h=9999&v=B56C4626-B5D3-4DF2-BAAC-3CEA47CB7FAF)
-6726-p.jpg?w=118&h=9999&v=D3C61C81-BF4D-4D62-9F68-6A6EFB1C3EFD)








